
Bauskas novada pašvaldības atklātajā iepirkumu konkursā “Administratīvās ēkas pārbūve par Bauskas Centrālo bibliotēku” par uzvarētāju atzīts vietējais uzņēmums SIA “Kvintets M”, kas minētos darbus veiks par 2 415 380,06 eiro (bez PVN), liecina informācija Elektroniskajā iepirkumu sistēmā (EIS).
Darbu izpildes termiņš – 18 mēneši no būvdarbu zonas nodošanas akta parakstīšanas dienas, neieskaitot tehnoloģiskos pārtraukumus. Ēkas pārbūve tiks veikta saskaņā ar SIA “REM PRO” izstrādāto būvprojektu.
Konkurss tika izsludināts šī gada 8. janvārī, un pretendenti savus piedāvājumus varēja iesniegt līdz 4. martam.
Saskaņā ar publiskoto informāciju, konkursā kopumā piedalījās trīspadsmit pretendenti. Otru lētāko cenu piedāvāja personu apvienība “RTS” (SIA “RTS Būve” un RTS Infraehitus OÜ) – 2 531 783 eiro. Trešais izdevīgākais piedāvājums nāca no apvienības “Marels Būve un Elset”, kuras aprēķinātās būvdarbu izmaksas bija 2 942 385,33 eiro apmērā. Tai cieši sekoja SIA “Bildberg” ar summu 2 968 205,64 eiro un SIA “APSA Būve” – 2 969 369,69 eiro, taču pēdējais pretendents neatbilstības dēļ tika izslēgts no dalības konkursā.
SIA “Revohaus” piedāvātā līgumcena bija 2 987 759,50 eiro, kas vēlāk pēc aritmētisko kļūdu korekcijas tika precizēta uz 2 992 825,46 eiro. Tuvu šai summai bija arī SIA “Build-Invest Latvia” piedāvājums – 3 071 890,63 eiro. Savukārt uzņēmums “Ošukalns celtniecība” bija gatavs darbus veikt par 3 018 999,99 eiro, bet SIA “Delta” par 3 136 100,23 eiro. Pārbaudot iesniegtos datus, Bauskas novada pašvaldības Iepirkumu komisija nolēma izslēgt SIA “Delta” no konkursa, jo pretendenta iesniegtais piedāvājums neatbilda atklāta konkursa nolikuma 5.3.2. punktam.
Trīs firmas iesniedza vēl dārgākus piedāvājumus. SIA “Amatnieks” darbus piedāvāja paveikt par 3 099 812,32 eiro, personu apvienība “Nord SW un Eltex” (SIA “Nord SW” un SIA “Eltex”) – par 3 118 583,64 eiro, savukārt pilnsabiedrība “P un P būvniecības grupa”, kurā apvienojušies “Pro Dev” un “Pro Group”, plānoja būvdarbu izmaksas 3 221 854,42 eiro apmērā.
Visaugstāko cenu – 3 289 332,99 eiro – piedāvāja personu apvienība “Nexthome – Jungrex”, ko veido SIA “Nexthome” un SIA “Jungrex”. Visas cenas norādītas bez pievienotās vērtības nodokļa.
Konkursā noteiktie vērtēšanas kritēriji bija piedāvātā cena (70 punkti), būvdarbu garantijas termiņš (20 punkti) un būvdarbu vadītāja pieredze (10 punkti).
Apkopojot rezultātus, uzvarētājs tika noteikts, summējot visus trīs kritērijos iegūtos punktus. Tieši šādā kārtībā visaugstāko novērtējumu – pilnus 100 punktus – ieguva SIA “Kvintets M”, tādējādi kļūstot par konkursa uzvarētāju.
Iepirkumu komisijas lēmumu var pārsūdzēt 10 dienu laikā no brīža, kad pieņemts lēmums.
| Firma | Piedāvātā cena (punkti) | Garantijas periods (punkti) | Vadītāja pieredze (punkti) | Kopējais punktu skaits |
|---|---|---|---|---|
| “Kvintets M” SIA | 70,00 | 20 | 10 | 100,00 |
| “Personu apvienība ‘RTS'” | 66,78 | 20 | 10 | 96,78 |
| “Bildberg” SIA | 56,96 | 20 | 10 | 86,96 |
| “Ošukalns celtniecība” SIA | 56,00 | 20 | 10 | 86,00 |
| “Amatnieks” SIA | 54,54 | 20 | 10 | 84,54 |
| “Nord SW un Eltex” | 54,22 | 20 | 10 | 84,22 |
| “PS P un P būvniecības grupa” | 52,48 | 20 | 10 | 82,48 |
| “Revohaus” SIA | 56,49 | 20 | 0 | 76,49 |
| “Marels Būve un Elset” | 57,46 | 10 | 10 | 77,46 |
| “Build-Invest Latvia” SIA | 55,04 | 20 | 0 | 75,04 |
| “Nexthome – Jungrex” | 51,40 | 5 | 10 | 66,40 |

Pagājušajā nedēļā notikušajā pašvaldības finanšu komitejas sēdē Bauskas novada domes deputāti konceptuāli atbalstīja lēmumprojektu par ilgtermiņa aizņēmuma ņemšanu Valsts kasē investīciju projekta “Administratīvās ēkas pārbūve par Bauskas Centrālo bibliotēku” realizācijai.
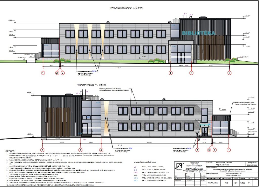
2024. gadā tika izstrādāts un apstiprināts būvprojekts par ēkas pārbūvi Uzvaras ielā 3, paredzot bibliotēkas pārcelšanu uz mūsdienu prasībām atbilstošām, estētiski kvalitatīvām un funkcionāli piemērotām telpām. Projekts ietver ēkas pilnīgu pārbūvi, tai skaitā ventilācijas un apkures sistēmu nomaiņu, liftu uzstādīšanu, elektroinstalācijas atjaunošanu, telpu pārplānošanu un remontdarbus vairāk nekā 1100 kvadrātmetru platībā. Teritorijā ap ēku paredzēta labiekārtošana ar jaunu apgaismojumu, gājēju ietvēm, soliņiem, stāvlaukumiem un apstādījumiem.
Projekta īstenošanai veiktas iepirkuma procedūras, nosakot kopējās izmaksas 2 949 523,90 eiro ar PVN. No šīs summas 2 922 609,87 eiro paredzēti būvdarbiem, 9 804,63 eiro autoruzraudzībai, bet 17 109,40 eiro būvuzraudzībai, tostarp 363 eiro garantijas laika uzraudzībai. Indikatīvais izmaksu sadalījums pa gadiem: 2025. gadā 1 500 000 eiro, 2026. gadā 1 449 160,90 eiro.
Aizņēmumu plānots ņemt Valsts kasē, balstoties uz likumu “Par valsts budžetu 2025. gadam un budžeta ietvaru 2025., 2026. un 2027. gadam”, kas pašvaldībām ļauj aizņemties četriem prioritārajiem investīciju projektiem, nepārsniedzot kopējo aizņēmumu summu 1,5 miljoni eiro. Lai nodrošinātu šo finansējumu, pašvaldībai jāparedz 10% līdzfinansējums no attiecīgā gada izmaksām – 2025. gadā tas ir 150 000 eiro, kas jau ir iekļauts pašvaldības budžetā.
Komitejas sēdē deputāti vienojās par aizņēmuma pieprasīšanu 1 500 000 eiro apmērā ar termiņu uz desmit gadiem, nosakot atlikto pamatsummas atmaksu līdz 2027. gada martam. Aizņēmumu paredzēts izņemt divos etapos – 2025. un 2026. gadā. Atlikušais nepieciešamais līdzfinansējums 2026. gadā – 1 299 161 eiro – tiks precizēts atbilstoši 2025. gada faktiskajai projekta izpildei.
Lēmumprojekts tālāk tiks skatīts 27. marta domes sēdē, kur deputāti pieņems galīgo lēmumu.

Jau vēstīts, ka pārbūves projekta autore ir arhitekte Ilze Ratniece.
Esošā ēka ir celta 1968. gadā, tā ir tipiska padomju laika biroju ēka ar diviem virszemes un vienu pazemes stāvu. Šobrīd tās kopējā platība ir 1033,1 kvadrātmetri, bet pēc pārbūves tā pieaugs līdz 1117,2 kvadrātmetriem. Apbūves laukums palielināsies no 585,1 kvadrātmetra līdz 723 kvadrātmetriem.
Projektā norādīts, ka ēkas plānojums ir loģisks un funkcionāls, taču nolietots, un daudzas tās daļas neatbilst mūsdienu tehniskajām un pieejamības prasībām. Piemēram, durvju izmēri un augstumi ir neatbilstoši, kāpņu telpas ir fiziski nolietotas, un vides pieejamība cilvēkiem ar funkcionāliem traucējumiem nav nodrošināta.
Paredzēts, ka īstenojot projektu, ēkas fasāde tiks pilnībā atjaunota, uzlabojot tās energoefektivitāti un vizuālo pievilcību. Fasādes apdare tiks veidota pēc kontrasta principa – Uzvaras ielas pusē tiks izmantotas tumši pelēkas “Ruukki” skārda loksnes ar gaiši pelēku elementu akcentiem, savukārt Parka ielas fasādei būs gaišu minerālšķiedru plākšņu apdare. Papildus tiks izveidots jauns, stiklots ieejas mezgls ar automātiskām durvīm un apšuvumu no metāla kasetēm.

Pirmajā stāvā atradīsies bērnu bibliotēkas zāle un novadpētniecības lasītava, kas būs ziemeļu spārnā. Šīs telpas tiks veidotas ar stiklotām alumīnija starpsienām, lai tās vizuāli saplūstu ar galveno vestibilu, bet ailu apdare būs gaiši finierēta. Praktiski visu dienvidu spārnu aizņems bibliotēkas brīvpieejas krājums – lasītava. Tā projektēta, apvienojot kādreizējo gaiteni un tam pieguļošos kabinetus. Lai telpai piešķirtu plašumu, projektēta esošo, zemo ailu paaugstināšana līdz 2,8 metriem, piekaramo griestu montāža zem pārsedzēm 2,7 metru augstumā, tādējādi izveidojot vizuāli vienotu apjomu. Šajā spārnā tiks ierīkotas arī labierīcības, tostarp cilvēkiem ar invaliditāti, kā arī telpu uzkopšanas inventāra telpa.
Pašā dienvidu korpusa galā projektēta piebūve – stiklota, neapkurināma veranda, kura tiks izmantota dažādām bibliotēkas publiskajām aktivitātēm. Verandas stiklojums daļēji veidots kā ermoņikas veida salokāmas durvis, apvienojot iekštelpu un ārtelpu. Verandas platie pakāpieni izmantojami gan kā podesti, gan dažādu instalāciju veidošanai.
Centrālajā vestibilā zem kāpnēm plānoti individuāla dizaina, slēdzami garderobes skapīši bibliotēkas apmeklētājiem. No vestibila projektēta arī izeja uz pagalmu.

Otrajā stāvā tiks ierīkota aktu zāle, kas atradīsies ziemeļu spārnā un spēs uzņemt aptuveni 70 cilvēkus. Aiz zāles paaugstinātā līmenī atradīsies kabinets un palīgtelpa, kas paredzēta saimnieciskajiem darbiniekiem. Dienvidu spārnā gar centrālo gaiteni tiks izvietoti administrācijas kabineti, komplektācijas un apstrādes telpa, kā arī daudzfunkcionāla telpa, ko būs iespējams sadalīt divās daļās, izmantojot transformējamu starpsienu. Šeit atradīsies arī darbinieku atpūtas telpa un garderobe.
Tāpat kā pirmajā stāvā, arī otrajā stāvā virs sanitārajiem mezgliem tiks ierīkotas tualetes un uzkopšanas telpas. Centrālajā vestibilā ar stiklotām starpsienām būs iekārtotas divas individuālas klusās lasītavas, kā arī divi iebūvēti garderobes skapji apmeklētāju virsdrēbēm. Lai nodrošinātu ērtu pārvietošanos, visas durvis tiks pielāgotas, paplašinot to ailas, lai durvju brīvais platums būtu vismaz 900 mm un augstums – vismaz 2000 mm.
Ēka tiks pilnībā pielāgota cilvēkiem ar funkcionāliem traucējumiem. Tiks uzstādīts lifts ar audio un Braila norādēm, taktilie marķējumi uz kāpnēm un norādēm, kā arī sanitārie mezgli ar pielāgotu aprīkojumu. Visi durvju sliekšņi būs samazināti līdz minimālajam augstumam, lai nodrošinātu ratiņkrēslu piekļuvi.
Interjers būs veidots gaišos, modernajos toņos, izmantojot augstas kvalitātes apdares materiālus. Bibliotēkas bērnu nodaļā būs īpaši plaukti ar iebūvētām sēdvietām, kas stilistiski veidos “namiņu” siluetus. Sanitārie mezgli tiks aprīkoti ar bezkontakta tehnoloģijām, un aktu zālē tiks ieklāts ozola masīvkoka parkets.
