
Bauskas novada pašvaldība pagarinājusi piedāvājumu iesniegšanas termiņu iepirkumā par administratīvās ēkas pārbūvi par Bauskas Centrālo bibliotēku, liecina informācija elektroniskajā iepirkumu sistēmā EIS).
Lai paplašinātu pretendentu loku un sagatavotu maksimāli kvalitatīvu piedāvājumu, no pretendentu puses tika lūgts izskatīt iespēju pagarināt piedāvājuma sagatavošanas laiku vismaz par trīs nedēļām. Šonedēļ Bauskas novada iepirkumu komisija veica grozījumus nolikumā, nosakot, ka pretendenti savus piedāvājumus var iesniegt līdz šī gada 4.februārim. Iepriekš par piedāvājumu iesniegšanas termiņu bija noteikts 23.janvāris.
Saskaņā ar informāciju EIS līdz šī gada 22. janvārim saistībā ar atklāto konkursu “Administratīvās ēkas pārbūve par Bauskas Centrālo bibliotēku” iepirkumu komisijā no pretendentiem saņemti 65 jautājumi. Tie galvenokārt skāra tehniskās specifikācijas, būvprojektu dokumentācijas precizējumus un atšķirības starp projektā norādītajiem datiem un lokālajām tāmēm.
Projekta dokumentācijā tika atklātas nesakritības logu un vitrīnu izmēros. Piemēram, logam L-4 un vitrīnām VT-10 un VT-11 sākotnēji norādītie izmēri neatbilda projektam, radot neskaidrības par to, kas faktiski jāuzstāda. Pēcāk izmēri precizēti un tāme labota.
Viens no saņemtajiem jautājumiem atklāja neskaidrību par izmantotās siltinājuma akmens vates piemērotību projektā. Pretendents norādīja, ka projektā fasādes sienām paredzētā “Paroc eXtra” akmens vate nav piemērota līmēšanai, dībeļošanai un apmetuma fasādes sistēmas izveidei. Tika pieprasīts skaidrojums, vai šī vate tiešām ir atbilstoša? Atbildē no iepirkumu komisijas tika precizēts, ka ventilējamās fasādēs kā apakšējais siltinājuma slānis jāizmanto “Paroc Ultra”, un norādīts, ka veikts labojums lokālajā tāmē.
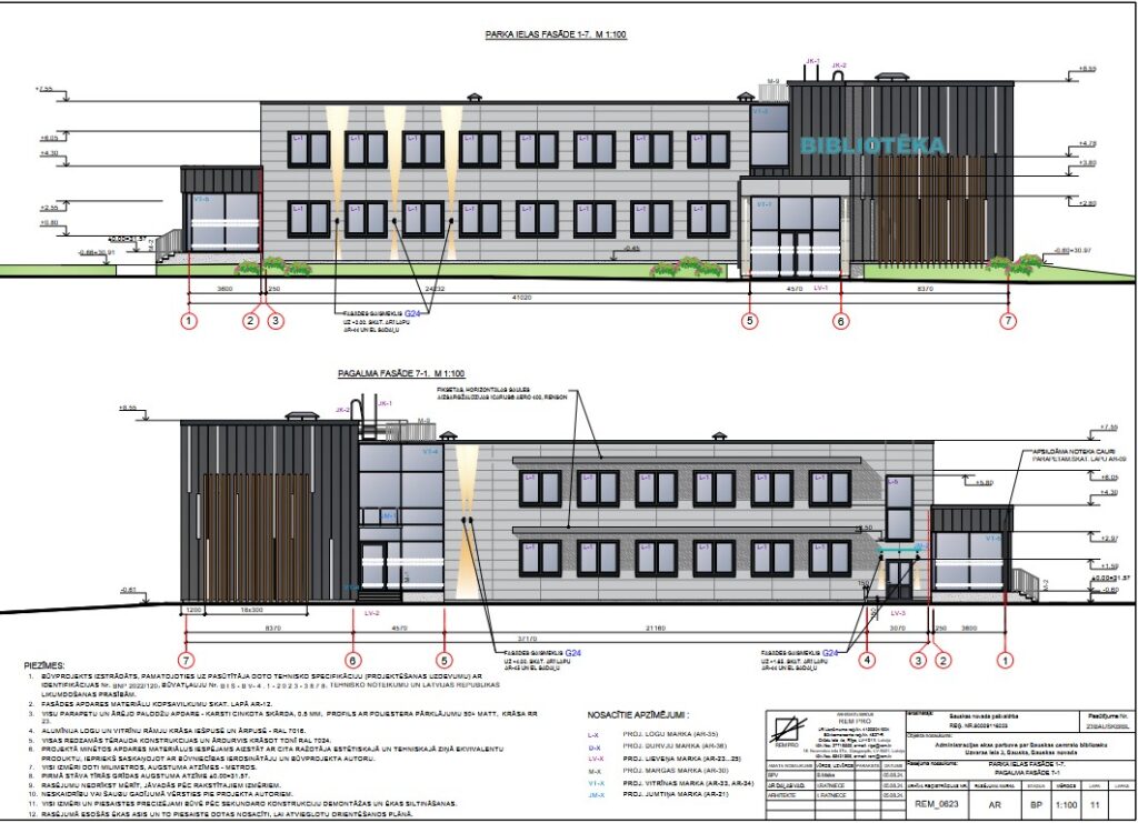
Tāpat no pretendentu puses bija jautājums par uzrakstu “Bibliotēka”, kas ir iekļauts rasējumos. Iepirkuma komisija atbildē skaidro, ka šādu uzrakstu nav paredzēts projektā realizēt.
Pretendentiem bija neskaidrs, cik pieturas plānotas ir liftam, un kādi ir tehniskie parametri. Atbildē tika norādīts, ka lifts būs ar trīs pieturām un solīts pievienot specifikāciju.
Neprecizitātes fiksētas arī būvdarbu izpildes termiņos. Nolikumā būvdarbu termiņš paredzēts 18 mēneši, bet tehniskajās specifikācijās norādīts, ka būvdarbi jāplāno un jāveic tā, lai tos paveiktu divpadsmit mēnešu laikā (ieskaitot nodošanu ekspluatācijā). Iepirkuma komisija atbildē raksta, ka šis punkts tiks precizēts.

Iepirkumā paredzamā līgumcena nav norādīta. Pieejamā informācija liecina, ka atklātā konkursa piedāvājumu vērtēšanā tiks izmantoti trīs galvenie kritēriji ar kopējo maksimālo punktu skaitu – 100 punkti. Lielākais svars būs piedāvātajai cenai, kas bez PVN tiks vērtēta ar maksimāli 70 punktiem. Otrs nozīmīgākais kritērijs būs būvdarbu garantijas periods mēnešos, te pretendents var iegūt līdz 20 punktiem. Trešais kritērijs attiecas uz atbildīgā ēku būvdarbu vadītāja pieredzi, par kuru var iegūt līdz 10 punktiem.
Būvniecība jāveic saskaņā ar SIA „REM PRO” izstrādāto būvprojektu “Administrācijas ēkas pārbūve par Bauskas centrālo bibliotēku Uzvaras ielā 3, Bauskā, Bauskas novadā” un tehnisko specifikāciju. Projekta autore ir arhitekte Ilze Ratniece.
Esošā ēka ir celta 1968. gadā, tā ir tipiska padomju laika biroju ēka ar diviem virszemes un vienu pazemes stāvu. Šobrīd tās kopējā platība ir 1033,1 m², bet pēc pārbūves tā pieaugs līdz 1117,2 m². Apbūves laukums palielināsies no 585,1 m² līdz 723,0 m², bet ēkas kopējais būvtilpums pieaugs no 5099,7 m³ līdz 5523,8 m³.
Projektā norādīts, ka ēkas plānojums ir loģisks un funkcionāls, taču nolietots, un daudzas tās daļas neatbilst mūsdienu tehniskajām un pieejamības prasībām. Piemēram, durvju izmēri un augstumi ir neatbilstoši, kāpņu telpas ir fiziski nolietotas, un vides pieejamība cilvēkiem ar funkcionāliem traucējumiem nav nodrošināta.
Paredzēts, ka īstenojot projektu, ēkas fasāde tiks pilnībā atjaunota, uzlabojot tās energoefektivitāti un vizuālo pievilcību. Fasādes apdare tiks veidota pēc kontrasta principa – Uzvaras ielas pusē tiks izmantotas tumši pelēkas “Ruukki” skārda loksnes ar gaiši pelēku elementu akcentiem, savukārt Parka ielas fasādei būs gaišu minerālšķiedru plākšņu apdare. Papildus tiks izveidots jauns, stiklots ieejas mezgls ar automātiskām durvīm un apšuvumu no metāla kasetēm.

Pirmajā stāvā atradīsies bērnu bibliotēkas zāle un novadpētniecības lasītava, kas būs ziemeļu spārnā. Šīs telpas tiks veidotas ar stiklotām alumīnija starpsienām, lai tās vizuāli saplūstu ar galveno vestibilu, bet ailu apdare būs gaiši finierēta. Praktiski visu dienvidu spārnu aizņems bibliotēkas brīvpieejas krājums – lasītava. Tā projektēta, apvienojot kādreizējo gaiteni un tam pieguļošos kabinetus. Lai telpai piešķirtu plašumu, projektēta esošo, zemo ailu paaugstināšana līdz 2,8 metriem, piekaramo griestu montāža zem pārsedzēm 2,7 metru augstumā, tādējādi izveidojot vizuāli vienotu apjomu. Šajā spārnā tiks ierīkotas arī labierīcības, tostarp cilvēkiem ar invaliditāti, kā arī telpu uzkopšanas inventāra telpa.
Pašā dienvidu korpusa galā projektēta piebūve – stiklota, neapkurināma veranda, kura tiks izmantota dažādām bibliotēkas publiskajām aktivitātēm. Verandas stiklojums daļēji veidots kā ermoņikas veida salokāmas durvis, apvienojot iekštelpu un ārtelpu. Verandas platie pakāpieni izmantojami gan kā podesti, gan dažādu instalāciju veidošanai.
Centrālajā vestibilā zem kāpnēm plānoti individuāla dizaina, slēdzami garderobes skapīši bibliotēkas apmeklētājiem. No vestibila projektēta arī izeja uz pagalmu.

Otrajā stāvā tiks ierīkota aktu zāle, kas atradīsies ziemeļu spārnā un spēs uzņemt aptuveni 70 cilvēkus. Aiz zāles paaugstinātā līmenī atradīsies kabinets un palīgtelpa, kas paredzēta saimnieciskajiem darbiniekiem. Dienvidu spārnā gar centrālo gaiteni tiks izvietoti administrācijas kabineti, komplektācijas un apstrādes telpa, kā arī daudzfunkcionāla telpa, ko būs iespējams sadalīt divās daļās, izmantojot transformējamu starpsienu. Šeit atradīsies arī darbinieku atpūtas telpa un garderobe.
Tāpat kā pirmajā stāvā, arī otrajā stāvā virs sanitārajiem mezgliem tiks ierīkotas tualetes un uzkopšanas telpas. Centrālajā vestibilā ar stiklotām starpsienām būs iekārtotas divas individuālas klusās lasītavas, kā arī divi iebūvēti garderobes skapji apmeklētāju virsdrēbēm. Lai nodrošinātu ērtu pārvietošanos, visas durvis tiks pielāgotas, paplašinot to ailas, lai durvju brīvais platums būtu vismaz 900 mm un augstums – vismaz 2000 mm.
Ēka tiks pilnībā pielāgota cilvēkiem ar funkcionāliem traucējumiem. Tiks uzstādīts lifts ar audio un Braila norādēm, taktilie marķējumi uz kāpnēm un norādēm, kā arī sanitārie mezgli ar pielāgotu aprīkojumu. Visi durvju sliekšņi būs samazināti līdz minimālajam augstumam, lai nodrošinātu ratiņkrēslu piekļuvi.
Interjers būs veidots gaišos, modernajos toņos, izmantojot augstas kvalitātes apdares materiālus. Bibliotēkas bērnu nodaļā būs īpaši plaukti ar iebūvētām sēdvietām, kas stilistiski veidos “namiņu” siluetus. Sanitārie mezgli tiks aprīkoti ar bezkontakta tehnoloģijām, un aktu zālē tiks ieklāts ozola masīvkoka parkets.

Vairākos Bauskas novada domes sasaukumos aktualizēts jautājums par jaunas bibliotēkas ēkas nepieciešamību Bauskā. Uz kultūras centru kā uz pagaidu mājvietu Bauskas centrālā bibliotēka pārcēlās pirms 80 gadiem, un pašlaik ir pēdējā visā Kurzemes un Zemgales reģionā, kurai joprojām nav mūsdienīgu telpu. Jāatzīmē, ka esošā bibliotēkas ēka Kalna ielā 18 ir avārijas stāvoklī.
Jāmin, ka iepriekš tika izstrādāts bibliotēkas būvniecībai projekts, kas nodokļu maksātājiem izmaksāja 256 000 eiro, taču tas tā arī netika īstenots. Pirms vairākiem gadiem Bauskas novada dome lēma bibliotēkas vajadzībām pārņemt Finanšu ministrijai piederošu ēku Uzvaras ielā 3. 2023. gadā aizsākās ēkas Uzvaras ielā 3 pārprojektēšanas darbi (2023. gada 9. martā Bauskas novada pašvaldība noslēdza līgumu ar uzņēmumu SIA “REM PRO” par administrācijas ēkas pārbūves būvprojekta izstrādi un autoruzraudzību Bauskā. Līgumcena bija 124 222 eiro bez PVN).
Jautājumi par Bauskas centrālās bibliotēkas būvniecību nosūtīti Bauskas novada pašvaldībai, atbildes tiks sniegtas preses brīfingā pirmdien,27. janvārī.
2013.gada martā Bauskas novada dome izsludināja metu konkursu “Bauskas Centrālās bibliotēkas būvniecības priekšlikumu izstrāde”, kurā savus piedāvājumus iesniedza vairākas firmas.



